Zweifamilienhaus mit freier großer Wohnung, kleinem Garten + Garagengrundstück in Düren, Tivolistr.
Objektart
Adresse
Objektdaten
Informationen
Ausstattung
Details
Die Immobilie ist bis zum 20.3.2026 für einen Käufer reserviert.
Das Haus wurde vermutlich um die Jahrhundertwende 1900 erbaut. Zur Straße ist die Fassade in Klinkeroptik verkleidet. Die Immobilie wurde fortlaufend modernisiert.
Die große Maisonettewohnung im Ober- und Dachgeschoss mit rund 106 m² Wohnfläche ist frei. Sie kann nach Zahlung des Kaufpreises sofort selbst genutzt oder zu aktuellen Preisen neu vermietet werden.
Die kleine Wohnung im Erdgeschoss ist 55 m² groß. Sie und die Doppelgarage mit Überdachung sind vermietet. Aktuell betragen die Kaltmieten für die kleine Wohnung und die große Garage 470 Euro im Monat. Es gibt keine Mietrückstände oder Streitigkeiten mit den Mietern.
Aus dem am 2.12.2024 anerkannten qualifizierten Mietspiegel 2025 der Stadt Düren ergeben sich die folgenden ortsüblichen Vergleichsmieten: Die 55 m² Wohnung liegt bei 6,35 Euro und die 106 m² Wohnung bei 6,17 Euro pro m² Wohnfläche. Die Wohnlage des Hauses ist im Straßenverzeichnis als Mittel eingestuft. Auf Basis dieser Werte ergibt sich eine monatliche Vergleichsmiete von 1.003,27 Euro kalt. Hinzu kommt noch die Doppelgarage. Bei nur 150 Euro für die Garage beträgt die Gesamtmiete 1.153,27 Euro im Monat. Das ist eine Jahreskaltmiete von 13.839,24 Euro für die gesamte Immobilie.
Die Zuwegung zum Eingang des Hauses, dem Wintergarten und der Doppelgarage erfolgt über das Nachbargrundstück. Der Zugang zum Haus ist über ein Durchgangsrecht. Die Zufahrt zur Garage über ein Wegerecht im Grundbuch gesichert.
Die Wohnung im Erdgeschoss hat 2 Zimmer, Küche, Diele und Bad. Sie ist über den Wintergarten zu erreichen.
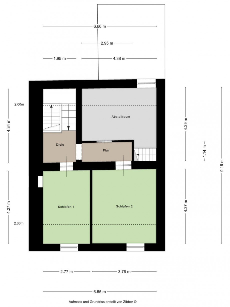
Zur großen Wohnung gehören auf 2 Etagen insgesamt 5 Zimmer, Küche, Diele, Bad und Flur und ein großer Abstellraum im Dachgeschoss. Hinzu kommen der Speicher im Spitzboden und das WC im Erdgeschoss.
Die Wohnfläche der freien, großen Maisonettewohnung beträgt laut einer Neuvermessung genau 106,35 m². Der Flur im Erdgeschoss ist in der Fläche nicht berücksichtigt. Der Zugang erfolgt durch den Wintergarten oder über den alten Haupteingang des Hauses.
Im Erdgeschoss gibt es einen gemeinschaftlichen Hauswirtschafts- und Abstellraum. Zusätzlich hat jede Wohnung noch einen eigenen Abstellraum als Kellerersatz im Erdgeschoss Richtung Garten.
Die Doppelgarage ohne Trennwand ist aktuell als Lager vermietet. Sie hat eine Nutzfläche von 33,1 m² und 2 abschließbare Garagentore in üblicher Größe. Innen ist sie insgesamt 5,33 Meter breit und 6,20 Meter lang. Der Bereich davor ist überdacht. Hier steht dem Nutzer eine weitere Fläche von 37,1 m² zur Verfügung.
Hinter der Garage befindet sich noch eine Grünfläche von etwa 28 bis 31 Metern Länge. Sie ist mit Bäumen und Sträuchern zugewachsen und grenzt an den Rurdammweg. Möglicherweise ist das Grundstück auch von dort zusätzlich nutzbar.
Hinter dem Haupthaus mit dem Wintergarten zur Allgemeinnutzung befinden sich ein Hauswirtschaftsraum und 3 Abstellräume. Dahinter liegt ein kleiner Garten. Hinzu kommt eine Doppelgarage mit 2 Toren und zusätzlicher Überdachung.
Zur Straßenseite wurden im Erd- und Obergeschoss bereits Schallschutzfenster installiert. In einer Gaube im Dachgeschoss ist noch ein Holzfenster mit Isolierverglasung eingebaut. Die anderen Fenster sind Kunststofffenster mit Isolierverglasung. Die Fenster der Wohnräume im Erd- und Obergeschoss, der Küchen und Badezimmer und im Treppenhaus sind mit Rollladen ausgestattet.
Vor etwa 10 Jahren wurden die Wände in beiden Wohnungen begradigt. Zusätzlich sind die Böden der Wohnung im Obergeschoss mit USB-Platten ausgelegt. Teilweise wurden auch Elektroleitungen erneuert.
Die Dachschrägen im Bereich der 2 Zimmer, des Flurs und des Abstellraums im Dachgeschoss wurden vor 8 Jahren wärmegedämmt. Vor etwa 9 Jahren wurde der Boden des Speichers im Spitzboden gedämmt und mit USB-Platten ausgelegt. Das Dach des Haupthauses wurde vor etwa 15 Jahren neu gedeckt.
Die 2 Wohnungen werden gemeinsam über eine Gasheizung von Junkers aus dem Jahr 2012 beheizt. Sie befindet sich in der Wohnung im Erdgeschoss. Zur Erfassung und Ablesung des jeweiligen Verbrauchs an den Heizkörpern besteht ein Vertrag mit der Firma Brunata. Der Vertrag ist vom Käufer zu übernehmen. Die Versorgung mit Warmwasser erfolgt über Durchlauferhitzer. In der Küche der Wohnung im Erdgeschoss ist noch ein Untertischgerät vorhanden.
Die Badezimmer sind hell / cremefarben gefliest und verfügen jeweils über ein Fenster zum Lüften. In der Wohnung im Erdgeschoss ist eine Dusche und in der oberen Wohnung eine Badewanne installiert.
Die Deckenhöhe der großen Wohnung liegt zwischen 2,55 und 3 Metern.
Das Haus befindet sich in der Tivolistraße in Düren. Der kleine Garten liegt nach hinten. Er ist südöstlich ausgerichtet. Der Bereich hinter dem Garagengrundstück ist südwestlich ausgerichtet. Hier können Sie einen zweiten, größeren Garten anlegen.
Von hier erreichen Sie bequem zu Fuß die Innenstadt. Auch die Haltestellen von Bus und Bahn befinden sich in direkter Nähe zum Haus.
Das Grundstück der Garagen endet am Rurdammweg. Diese sind wie das Haus durch eine Durchfahrt des Nachbarhauses von der Tivolistraße erreichbar.
Die nächste Bushaltestelle und ein Supermarkt liegen etwa 200 Meter entfernt. Der Fußweg bis zur Haltestelle der Rurtalbahn am Rurdammweg beträgt 6 Minuten. Bis zur Fußgängerzone in der Innenstadt sind es zirka 1.100 Meter.
Düren ist mit rund 93.600 Einwohnern eine mittelgroße Stadt in Nordrhein-Westfalen. Sie liegt am Nordrand der Eifel zwischen Aachen und Köln. Düren ist Verwaltungssitz des Kreis Dürens sowie Mitglied der Euregio Maas-Rhein.
Im Südwesten liegt die Rureifel mit der Rurtalsperre und dem Nationalpark Eifel. Düren liegt auf 125 Metern Höhe über Normalnull.
Die Infrastruktur in Düren ist hervorragend ausgebaut. Hier finden Sie alle Einrichtungen und Geschäfte des täglichen Bedarfs.
Düren besitzt einen Hauptbahnhof und eine eigene S-Bahn-Anbindung Richtung Köln. Hinzu kommt die Rurtalbahn, die Düren mit Nideggen und Heimbach in der Eifel verbindet. Sie führt bis in den Norden über Jülich nach Linnich. Das gut ausgebaute Busnetz läuft im Bushof, in der Nähe des Hauptbahnhofes und am Kaiserplatz zusammen.
Die Autobahn A4 verbindet Düren mit Köln und Aachen. Sie ist über drei Auffahrten im Westen, Norden und Osten erreichbar. Die A 44 Richtung Düsseldorf erreichen Sie am schnellsten im Norden über die Auffahrt bei Jülich.
Düren verfügt mit 3 großen Krankenhäusern und knapp 100 niedergelassenen Ärzten über eine ausgezeichnete gesundheitliche Versorgung. Sie finden in Düren 19 Grundschulen, 7 Förderschulen, 5 Gymnasien, 3 Realschulen, 2 Gesamtschulen, 1 Gesamthauptschule, 2 Berufsschulen und eine Landwirtschaftsschule.
Weitere Informationen und Eindrücke von Düren finden Sie unter:
https://www.juergendidi.de/Immobilienmakler-Dueren.htm
Interessieren Sie sich für das Haus? Haben Sie Fragen oder möchten Sie kaufen?
1. Senden Sie mir bitte eine schriftliche Anfrage mit Ihren vollständigen Kontaktdaten zu.
2. Rufen Sie mich danach während meiner Geschäftszeiten an. Sie erreichen mich von Montag bis Samstag zwischen 9 und 19 Uhr am besten unter der 0173 / 5658725.
Schriftliche Anfragen können aus zeitlichen Gründen oft nur spät oder gar nicht beantwortet werden.
Falls ich telefonisch nicht erreichbar sein sollte, rufe ich Sie zeitnah zurück.
Die getroffenen Aussagen und Angaben zum Angebotsobjekt beruhen auf den Angaben der Eigentümer. Änderungen und Irrtümer hinsichtlich des Angebotes bleiben vorbehalten.
Überprüfen Sie für Sie wichtige Angaben vor Abschluss des notariellen Kaufvertrags. Lassen Sie für Sie wesentliche Angaben unbedingt mit in den Kaufvertrag aufnehmen. Als Makler übernehme ich diesbezüglich keine Haftung.
Den Eigentümern liegen keine offiziellen Pläne zur Immobilie vor. Im Bauaktenarchiv der Stadt Düren waren auch keine Bauunterlagen zu finden. Das Gebäude wurde daher professionell mit einem 3D-Laserscanning neu vermessen. Ein Architekturbüro erstellte eine aktuelle Berechnung der Wohn- und Nutzflächen. Die Flächenangaben wurden der Berechnung des Architekten entnommen. Angaben zur Länge der Grünfläche hinter den Garagen wurden der Messfunktion in timonline entnommen und nicht vor Ort ausgemessen.
Aufgrund der nicht vorhandenen Originalunterlagen kann zur baurechtlichen Zulässigkeit des Hauses und der Garagen keine Aussage getroffen werden.
Die Immobilie wird so verkauft, wie sie bei der Besichtigung vorgefunden wird. Der Verkäufer übernimmt keine Garantien und keine Haftung. Dies betrifft sowohl sichtbare und unsichtbare Mängel des Grundbesitzes als auch gegebenenfalls mit verkaufte bewegliche Gegenstände.
Alle Bilder und die Grundrisse können Sie über die folgende Seite einsehen und abrufen:
https://www.juergendidi.de/Dueren/Zweifamilienhaus-mit-freier-grosser-Wohnung-kleinem-Garten-Garagengrundstueck-in-Dueren-Tivolistr-obj-13188.html
Bei mehreren Käufern verkaufen die Eigentümer grundsätzlich an denjenigen, der den höchsten Kaufpreis zahlt. Die Finanzierung des Kaufpreises und Abwicklung des Kaufs müssen gesichert sein. Die Grunderwerbsteuer, Notar- und Grundbuchkosten trägt der Käufer.
Bitte haben Sie Verständnis, dass ich vor der Besichtigung eine Vorauswahl hinsichtlich der Bonität und finanziellen Machbarkeit treffen muss. Ich benötige eine vorläufige allgemeine Finanzierungsbestätigung oder einen Kapitalnachweis in Höhe des Kaufpreises zuzüglich der Nebenkosten und geplanter Modernisierungen von Ihnen.
Für eine vorläufige Finanzierungsbestätigung und auch bei einer Finanzierung bin ich Ihnen bei guter Bonität grundsätzlich gerne behilflich. Rufen Sie mich an oder informieren Sie sich näher unter:
https://www.juergendidi.de/Finanzierungsbestaetigung.htm
https://www.juergendidi.de/Baufinanzierung.htm
Möchten Sie Ihre Immobilie verkaufen?
Sprechen Sie mich frühzeitig an. Sie erreichen mich am besten unter 0173 / 565 87 25 oder informieren Sie sich näher unter:
https://www.juergendidi.de/sicherer-Immobilienverkauf-nach-Plan.html
Ansprechpartner
Mobil: 0173/5658725
info@juergendidi.de
Rufen Sie mich bitte immer an, auch wenn Sie mir eine E-Mail senden.
Energieausweis (Bedarfsausweis)
199,50 kWh / (m²*a) Endenergiebedarf
199,50 kWh / (m²*a) Endenergiebedarf
199,50 kWh / (m²*a) Endenergiebedarf
Weitere Informationen
| Wesentlicher Energieträger | Gas |
| Energieausweis Ausstelldatum | 2025-09-14 |
| Energieausweis gültig bis | 13.9.2035 |
| Energieausweis Jahrgang | ab dem 1.5.2014 |
| Energieausweis Werteklasse | F |
| Energieausweis Baujahr | 1900 |
| Energieausweis Gebäudeart | Wohngebäude |
| Heizung | Zentralheizung |
| Befeuerung | Gas |
Objektanfrage
- Füllen Sie bitte das unten stehende Formular aus und drücken Sie auf 'Absenden'.
- Bitte rufen Sie mich danach immer zusätzlich an!
- Sie erreichen mich unter der 02421 / 694 21 71 oder 0173 / 565 87 25.
So ist eine Kontaktaufnahme und Berücksichtigung Ihrer Wünsche am schnellsten gewährleistet!
Rein schriftliche Anfragen können aus zeitlichen Gründen oft erst sehr spät oder auch gar nicht beantwortet werden.
