Bungalow mit Doppelgarage, Keller und pflegeleichtem Garten in ruhiger Lage von Linnich Welz
Objektart
Adresse
Objektdaten
Informationen
Ausstattung
Details
Rufen Sie mich nach einer schriftlichen Anfrage bitte immer an! Von Montag bis Samstag bin ich in der Regel gut von 9 bis 19 Uhr erreichbar. Sie erreichen mich am besten unter der 0173/5658725.
Der L-förmige Bungalow wurde Anfang der 70-er Jahre in massiver Bauweise auf einem Eckgrundstück errichtet. Er wurde 1974 fertiggestellt und fortlaufend modernisiert. Die Außenwände sind weiß verklinkert und mit 4 cm Styropor gedämmt. Das Dach hat eine Dämmung von 30 cm.
Das Haus ist einseitig angebaut und unterkellert. Es hat eine über 50 m² große Terrasse mit einem pflegeleichten kleinen Garten und einer Doppelgarage. Die Auffahrt vor den Garagen ist überdacht. Die Flächen vor dem Wohngebäude sind gepflastert und mit einer kleinen Mauer eingefriedet. Diese bieten Möglichkeiten für weitere Stellplätze.
Der Bungalow bietet auf einer Ebene im Erdgeschoss 4 bis 5 Zimmer, Küche, Diele, Bad, Flur, einen Abstellraum und ein Gäste-WC. Das Wohn-Esszimmer ist offen gestaltet. Es lässt sich leicht in 2 getrennte Räume unterteilen.
Die Planung des Hauses begann im Dezember 1970. Der Bauantrag wurde 1971 gestellt und 1972 genehmigt. Am 12.6.1974 erfolgte die Schlussabnahme. Im Energieausweis ist das Jahr des Bauantrags angegeben. Das Baujahr ist 1974, das Jahr der Fertigstellung.
Der Bungalow bietet auf einer Ebene 4 bis 5 Zimmer, Küche, Diele, Bad, Flur, einen Abstellraum und ein Gäste-WC.
Die über 50 m² große Terrasse ist blickgeschützt und vom Wohnzimmer aus stufenlos begehbar. Hinzu kommt noch ein überdachter Bereich direkt am Haus. Eine kleine ausfahrbare Markise sorgt auf Wunsch für Schatten.
An die Terrasse schließt ein pflegeleichter Garten mit einem Gartenhaus an. Neben dem Haus befindet sich eine Doppelgarage mit davor liegender Überdachung. An einer Ecke ragt diese etwas über das Flurstück hinaus. Der Vorgarten bietet Platz für weitere Stellplätze.
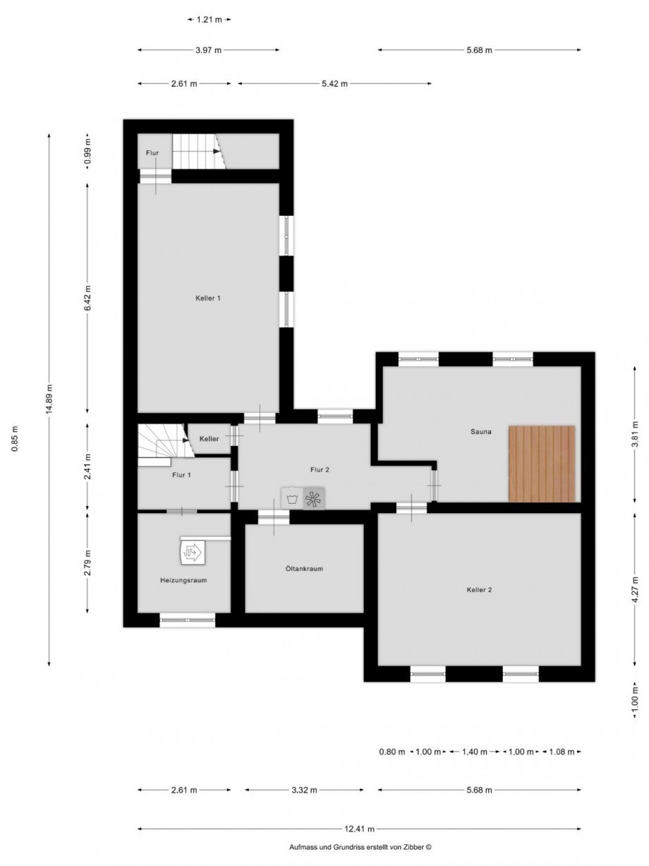
Der Bungalow und die Garagen sind verklinkert. Das Haus ist mit 4 cm Styropor wärmegedämmt und bis auf das Gäste-WC unterkellert. Die Räume im Keller sind, mit Ausnahme des Öltankraums, gefliest.
Das Gebäude wird über eine Öl-Zentralheizung mit Niedertemperaturtechnik aus dem Jahr 1998 beheizt. Der Metalltank fasst über 7.000 Liter Heizöl. 2003 wurde im Öltank, nach einer gründlichen Reinigung, eine Anlage zum Schutz vor Korrosion eingebaut. 2017 wurde der Tank zuletzt gereinigt.
Die Versorgung mit warmem Wasser läuft über die Heizung.
Das Badezimmer hat ein Fenster zur Terrasse. Es verfügt über eine bodengleiche Dusche mit wegklappbaren Glastüren. Auch ein Anschluss und Platz für eine Waschmaschine sind dort vorhanden.
Der einseitig angebaute Bungalow wurde in den letzten 25 Jahren wie folgt modernisiert.
Das Flachdach des Hauses wurde erneuert und mit 30 cm Styropor wärmegedämmt. Auch das Dach der Garage wurde erneuert. Die Eternitplatten der unteren Kopfverkleidung des Flachdachs wurden nicht ausgetauscht.
2005 wurde das Badezimmer inklusive der dort liegenden Wasser- und Elektroleitungen modernisiert. Im selben Jahr wurden im Erdgeschoss Kunststofffenster mit Isolierverglasung eingebaut. Das Fenster im Gäste-WC stammt aus dem Ursprungsbaujahr. Im Wohnzimmer zur Straße befindet sich ein Buntglasfenster mit einer davorgesetzten zweiten Scheibe. Diese hat einen Riss und keine Isolierverglasung. 2007 wurde die Sauna im Keller eingebaut.
Alle Möbel, inklusive der Einbauküche und der Sauna können Sie ohne Zusatzkosten übernehmen.
Das Haus ist bereits an das Glasfasernetz für schnelles Internet in Linnich Welz angeschlossen. Aktuell werden Verträge mit bis zu 1.000 Mbit pro Sekunde angeboten.
Das Haus steht auf einem Eckgrundstück in einem ruhigen Wohngebiet in Linnich Welz. Der Garten des Bungalows und die Terrasse sind südlich ausgerichtet.
Welz ist ein kleiner ländlicher Ort mit knapp 700 Einwohnern. Er gehört zur Stadt Linnich im Kreis Düren in Nordrhein-Westfahlen. Welz liegt, zwischen Rurdorf und Ederen, nur 3 km von Linnich entfernt. Durch den Ort verläuft der Merzbach. In der Nähe zwischen Welz und der Mündung am Freialdenhovener Fließ liegt das Naturschutzgebiet Merzbach.
In Welz gibt es eine Praxis für Allgemeinmedizin, Feuerwehr, Kirche und mehrere Vereine. Geschäfte des täglichen Bedarfs, Discounter, weitere Ärzte, Apotheken, Grundschulen, Kindergärten und weiterführende Schulen finden Sie in Linnich oder nahegelegenen Ortsteilen.
Schulbuslinien halten direkt in Welz am Spielplatz in der Pfarrer-Reiff-Straße und am Ederer Weg. Buslinien, die die Region erschließen, sind die Linien 274, 278 und 279. Diese verbinden Welz mit Linnich, Aldenhoven und Jülich.
Der nächste Bahnhof befindet sich in Linnich. Hier verläuft die Rurtalbahn. Sie verbindet Linnich stündlich mit Düren. Köln ist mit einer Regional-Express-Verbindung angeschlossen. Zusätzlich gibt es in Lindern noch einen Bahnhof mit Zugverbindungen nach Aachen und Möchengladbach.
Die Autobahn A44 (Anschluss Titz/Linnich) ist in etwa 10 Minuten mit dem Auto erreichbar. Auch die A46 ist gut erreichbar.
Entfernung bis zum Zentrum der größeren Orte und Städte in der Nähe von Welz:
Linnich: 3 km
Aldenhoven: 10 km
Baesweiler: 12 km
Jülich: 12 km
Hückelhoven: 13 km
Übach-Palenberg: 15 km
Erkelenz: 16 km
Geilenkirchen: 16 km
Titz: 18 km
Düren: 28 km
Neuss: 50 km
Düsseldorf: 59 km
Köln: 65 km
Die Umgebung rund um Linnich und Welz bietet ländliche Rad- und Wanderwege, ideal für Freizeitaktivitäten im Grünen. Spaziergänge am Merzbach bieten eine landschaftlich reizvolle Route.
Hier verläuft auch die 8 km lange 'Indeland-Wanderroute 4'. Der Weg führt durch die schöne Landschaft entlang des Baches und verbindet das Deutsche Glasmalerei-Museum in Linnich mit Welz.
Im Sommer bietet der nahegelegene Barmer See mit Badestrand Abkühlung und Erholung. Längere Radtouren und Tagesausflüge können zusätzlich entlang der Rur unternommen werden.
Interessieren Sie sich für den Bungalow in Linnich Welz?
1. Senden Sie mir bitte eine schriftliche Anfrage mit Ihren vollständigen Kontaktdaten zu.
2. Rufen Sie mich danach zusätzlich bitte immer unter der 0173 / 5658725 an.
Rein schriftliche Anfragen können aus zeitlichen Gründen oft nur spät oder gar nicht beantwortet werden. Rufen Sie daher immer an! Sofern Sie mich nicht direkt erreichen, rufe ich Sie zeitnah zurück.
Zwischenverkauf, Änderungen und Irrtümer hinsichtlich des Angebotes bleiben vorbehalten.
Die getroffenen Aussagen zum Angebotsobjekt beruhen auf den Angaben der Verkäufer. Überprüfen Sie für Sie wesentliche Angaben vor dem Kaufvertragsabschluss und / oder lassen Sie diese unbedingt mit in den notariellen Kaufvertrag aufnehmen. Als Makler übernehme ich diesbezüglich keine Haftung.
Die Immobilie wird so verkauft, wie sie bei der Besichtigung vor Ort vorgefunden wird. Der Verkäufer übernimmt keine Garantien und keine Haftung. Dies betrifft sowohl sichtbare und unsichtbare Mängel des Grundbesitzes als auch gegebenenfalls mit verkaufte bewegliche Gegenstände. Die Überdachung vor den Garagen ragt an einer Ecke etwas über das Grundstück hinaus. Die aus Eternitplatten bestehende untere Kopfverkleidung des Flachdachs könnte asbesthaltig sein.
Vor kurzem wurden mit einem 3D-Laserscanning ein neues Aufmaß und aktuelle Grundrisse erstellt. Ein Architekturbüro erstellte eine aktuelle Flächenberechnung nach der Wohnflächenverordnung WoFIV. Die Fläche der Terrasse wurde mit 25 % in der Wohnfläche berücksichtigt. Ein Kellerraum mit Sauna wurde mit 50 % seiner Fläche dazugezählt.
Alle Bilder, aktuelle Grundrisse und die Berechnung der Wohnfläche können Sie über die folgende Seite einsehen und abrufen:
https://www.juergendidi.de/Linnich/Bungalow-mit-Doppelgarage-Keller-und-pflegeleichtem-Garten-in-ruhiger-Lage-von-Linnich-Welz-obj-13195.html
Die Immobilie kann nach Kaufpreiszahlung übernommen werden. Es bestehen keine Mietverträge oder Belegungsbeschränkungen.
Bei mehreren Käufern verkaufen die Eigentümer grundsätzlich an denjenigen, der den höchsten Kaufpreis zahlt. Die Finanzierung des Kaufpreises und die Abwicklung des Kaufs müssen gesichert sein. Die Grunderwerbsteuer, Notar- und Grundbuchkosten trägt der Käufer.
Bitte haben Sie Verständnis, dass ich vor der Besichtigung eine Vorauswahl hinsichtlich der Bonität und finanziellen Machbarkeit treffen muss. Ich benötige von Ihnen eine vorläufige allgemeine Bestätigung für eine Finanzierung oder einen Kapitalnachweis in Höhe des Kaufpreises. Bitte berücksichtigen Sie auch die Kaufnebenkosten und Kosten für von Ihnen gewünschte Modernisierungen.
Zur Einholung einer vorläufigen Bestätigung für einen Kredit stehe ich Ihnen bei guter Bonität grundsätzlich gerne zur Verfügung. Auch die endgültige Finanzierung können Sie über mich beantragen. Ich wähle aus über 400 Kreditinstituten, Versicherungen und Bausparkassen für Sie aus. Rufen Sie mich an oder informieren Sie sich näher unter:
https://www.juergendidi.de/Finanzierungsbestaetigung.htm
https://www.juergendidi.de/Baufinanzierung.htm
Möchten Sie Ihre Immobilie verkaufen? Sprechen Sie mich unverbindlich an. Ich erstelle gerne eine kostenlose Marktwertermittlung für Sie.
Sie erreichen mich am besten unter 0173 / 565 87 25 oder informieren Sie sich näher unter:
https://www.juergendidi.de/sicherer-Immobilienverkauf-nach-Plan.htm
Ansprechpartner
Mobil: 0173/5658725
info@juergendidi.de
Rufen Sie mich bitte immer an, auch wenn Sie mir eine E-Mail senden.
Energieausweis (Bedarfsausweis)
225,24 kWh / (m²*a) Endenergiebedarf
225,24 kWh / (m²*a) Endenergiebedarf
225,24 kWh / (m²*a) Endenergiebedarf
Weitere Informationen
| Wesentlicher Energieträger | Öl |
| Energieausweis Ausstelldatum | 2026-03-10 |
| Energieausweis gültig bis | 10.03.2036 |
| Energieausweis Jahrgang | ab dem 1.5.2014 |
| Energieausweis Werteklasse | G |
| Energieausweis Baujahr | 1971 |
| Energieausweis Gebäudeart | Wohngebäude |
| Heizung | Zentralheizung |
| Befeuerung | Öl |
Objektanfrage
- Füllen Sie bitte das unten stehende Formular aus und drücken Sie auf 'Absenden'.
- Bitte rufen Sie mich danach immer zusätzlich an!
- Sie erreichen mich unter der 02421 / 694 21 71 oder 0173 / 565 87 25.
So ist eine Kontaktaufnahme und Berücksichtigung Ihrer Wünsche am schnellsten gewährleistet!
Rein schriftliche Anfragen können aus zeitlichen Gründen oft erst sehr spät oder auch gar nicht beantwortet werden.
